Valuation
4 Bedroom Semi-Detached For Sale in Vicarage Road, Cale Green, Stockport, SK3 8HL - Stockport Estate Agency, Hazel Grove, Great Moor, Offerton, Heaviley, Mile End, Woodsmoor, Davenport, Marple, Stockport, Cheshire Estate Agency

4 Bedroom Semi-Detached For Sale   |   Vicarage Road, Cale Green, Stockport, SK3 8HL   |    £325,000

Summary

Searching for a period property in Cale Green close to Davenport? Number 75 is situated less than a mile from Davenport village and Davenport train station. The A6 and motorway network are easily accessed too.

We think this home will appeal to you for many other reasons too; not least its four bedrooms, two good size reception rooms, excellent size bathroom/w.c., driveway and generous proportions wrapped in a quirky tapered layout which adds a characterful dimension to the home.

Cliched, we know, but seeing is believing with this home.

Pop in; neutral decor set off against an oak effect laminate floor enhances the sizeable hallway. A spindle balustrade staircase leads ahead to the first floor. To your right is the capacious lounge with an exposed brick fire place and an ornamental inset wood burner.

Back to the hall. On the left there is a downstairs w.c. The next room on the right is the dining room and to the rear is the kitchen. A door from the kitchen leads to the rear garden.

Up the stairs to the first floor landing where you will find four well proportioned and a bathroom/w./c. with four piece suite including a separate shower cubicle. Don't need four bedrooms? You may notice from the floor plan that scope exists to create a marvelous main bedroom.

Tenure: Freehold
EPC: Band D
Council Tax: C
Flood Risk: Very Low
Mobile and broadband available dependent upon provider.
Please note: Material Information has been sourced from 3rd party sources. We recommend that you seek verification yourself too, of course.
Material Information: Any Information added by us has been obtained from Land Registry or Sprift, who in turn collect their information from The Land Registry and Local Government sources when relevant. We strongly advise before purchasing you check this data is correct as we cannot be held responsible for displaying the sourced information which may then turn out to be incorrect. Instances of incorrect information may be where the Land Registry has a time lag and the owner of a property has purchased the Freehold but this has not been registered yet, or where the details of the Leasehold are not obvious on the Land Registry. Human error can also account for information being incorrect and we are unable to verify if the data is correct due to how the Land Registry works. Please note, some websites might block our attempts to provide you with links to the relevant information sources, so please contact our office if you need these.


  • Spacious period semi detached home
  • Two good sized reception rooms
  • Four piece bathroom suite
  • Off road parking
  • Less than a mile from Davenport village
  • Four bedrooms
  • Downstairs w.c.
  • Popular residential location
  • Garden

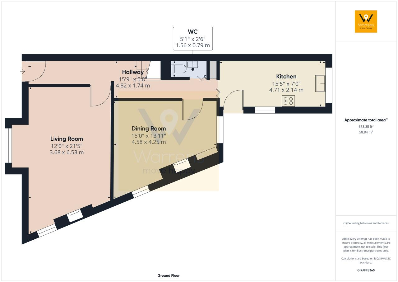
Ground Floor

Entrance Hall

27' 4'' x 3' 6'' (8.35m x 1.07m) A UPVC front door opens to the good sized hallway. The spindle balustrade staircase sweeps ahead to the first floor. Dado Rail. Two radiators. Laminate floor.
Doors from the hall provide access to the lounge, dining room, kitchen and the downstairs w.c. Understairs storage area.

Downstairs W.C.

6' 2'' x 2' 5'' (1.9m x 0.74m) With a low level w.c. and a wash hand basin.

Lounge

17' 0'' x 11' 11'' (5.19m x 3.64m) As the measurements indicate, this is an excellent size room. It features two windows; a UPVC double glazed bay window to the front and a UPVC double glazed bay window to the side.
Cornice. Picture rail. Feature fire place. Laminate floor.

Dining Room

15' 0'' x 13' 8'' (4.58m x 4.18m) Another good sized reception room, this one situated to the rear of the property.
UPVC double glazed window to the rear elevation. UPVC double glazed window to the side elevation. Hole in the wall ornate fire place. Built in cupboards. Ceiling cornice. Radiator. Laminate floor. Dado rail.

Kitchen

15' 3'' x 6' 11'' (4.67m x 2.12m) The kitchen is fitted with a range of wall, drawer, and base units. Roll top work surfaces incorporate a a stainless steel sink and drainer. Spaces for a range style cooker, washing machine and fridge freezer. Breakfast bar. Click lock laminate tiled flooring. Part tiled walls. UPVC double glazed windows to the rear and side aspects. Double glazed door leading out to the rear garden.

First Floor

Landing

2' 5'' x 6' 2'' (0.76m x 1.89m) Downlighters. Spindle balustrade bannister. Storage unit. Loft access point with pull down ladder to a part boarded loft. Dado rail. Door provide access to the four bedrooms and the bathroom/w.c.

Bedroom One

11' 11'' x 14' 4'' (3.65m x 4.38m) UPVC double glazed windows to the front and side elevations. Wooden flooring. Ceiling coving. Radiator.

Bedroom Two

9' 1'' x 10' 4'' (2.77m x 3.16m) Double glazed window to the front elevation. Ceiling coving. Laminate floor. Radiator.

Bedroom Three

8' 10'' x 10' 11'' (2.71m x 3.35m) UPVC double glazed window to the rear. Laminate floor. Ceiling coving. Radiator.

Bedroom Four

15' 3'' x 6' 11'' (4.66m x 2.13m) UPVC double glazed windows to the rear and side elevations. Ceiling coving. Radiator. Wood floor.

Bathroom/W.C.

14' 0'' x 5' 9'' (4.28m x 1.76m) An excellent size bathroom fitted with a modern white four piece suite comprising panelled bath, separate shower cubicle, low level wc and a wash basin. Laminate flooring. Part tiled walls. Chrome effect heated towel rail. Ceiling spotlights. UPVC double glazed frosted window to the side elevation.

Exterior

Outside

The rear garden has a brick paved area extending to a lawn garden. An area extends to the side where there is a timber shed. There is also a timber shed to the rear of the garden.

A timber gate allows pedestrian access to a small area to the side (housing the shed which is access from the rear garden).

To the front of the home is a brick paved driveway allowing off road parking. There is a low level wrought iron gate and brick wall to the front. The gate opens to the path to the front door.

EPC Graph

Additional Information

For further information on this property please call 0161 260 0444 or e-mail [email protected]

Share this property

EPC Graph

Administration Fees

Summary

Searching for a period property in Cale Green close to Davenport? Number 75 is situated less than a mile from Davenport village and Davenport train station. The A6 and motorway network are easily accessed too.

We think this home will appeal to you for many other reasons too; not least its four bedrooms, two good size reception rooms, excellent size bathroom/w.c., driveway and generous proportions wrapped in a quirky tapered layout which adds a characterful dimension to the home.

Cliched, we know, but seeing is believing with this home.

Pop in; neutral decor set off against an oak effect laminate floor enhances the sizeable hallway. A spindle balustrade staircase leads ahead to the first floor. To your right is the capacious lounge with an exposed brick fire place and an ornamental inset wood burner.

Back to the hall. On the left there is a downstairs w.c. The next room on the right is the dining room and to the rear is the kitchen. A door from the kitchen leads to the rear garden.

Up the stairs to the first floor landing where you will find four well proportioned and a bathroom/w./c. with four piece suite including a separate shower cubicle. Don't need four bedrooms? You may notice from the floor plan that scope exists to create a marvelous main bedroom.

Tenure: Freehold
EPC: Band D
Council Tax: C
Flood Risk: Very Low
Mobile and broadband available dependent upon provider.
Please note: Material Information has been sourced from 3rd party sources. We recommend that you seek verification yourself too, of course.
Material Information: Any Information added by us has been obtained from Land Registry or Sprift, who in turn collect their information from The Land Registry and Local Government sources when relevant. We strongly advise before purchasing you check this data is correct as we cannot be held responsible for displaying the sourced information which may then turn out to be incorrect. Instances of incorrect information may be where the Land Registry has a time lag and the owner of a property has purchased the Freehold but this has not been registered yet, or where the details of the Leasehold are not obvious on the Land Registry. Human error can also account for information being incorrect and we are unable to verify if the data is correct due to how the Land Registry works. Please note, some websites might block our attempts to provide you with links to the relevant information sources, so please contact our office if you need these.

Key Features


  • Spacious period semi detached home
  • Two good sized reception rooms
  • Four piece bathroom suite
  • Off road parking
  • Less than a mile from Davenport village
  • Four bedrooms
  • Downstairs w.c.
  • Popular residential location
  • Garden

Share this property

Rightmove Zoopla Ombudsman